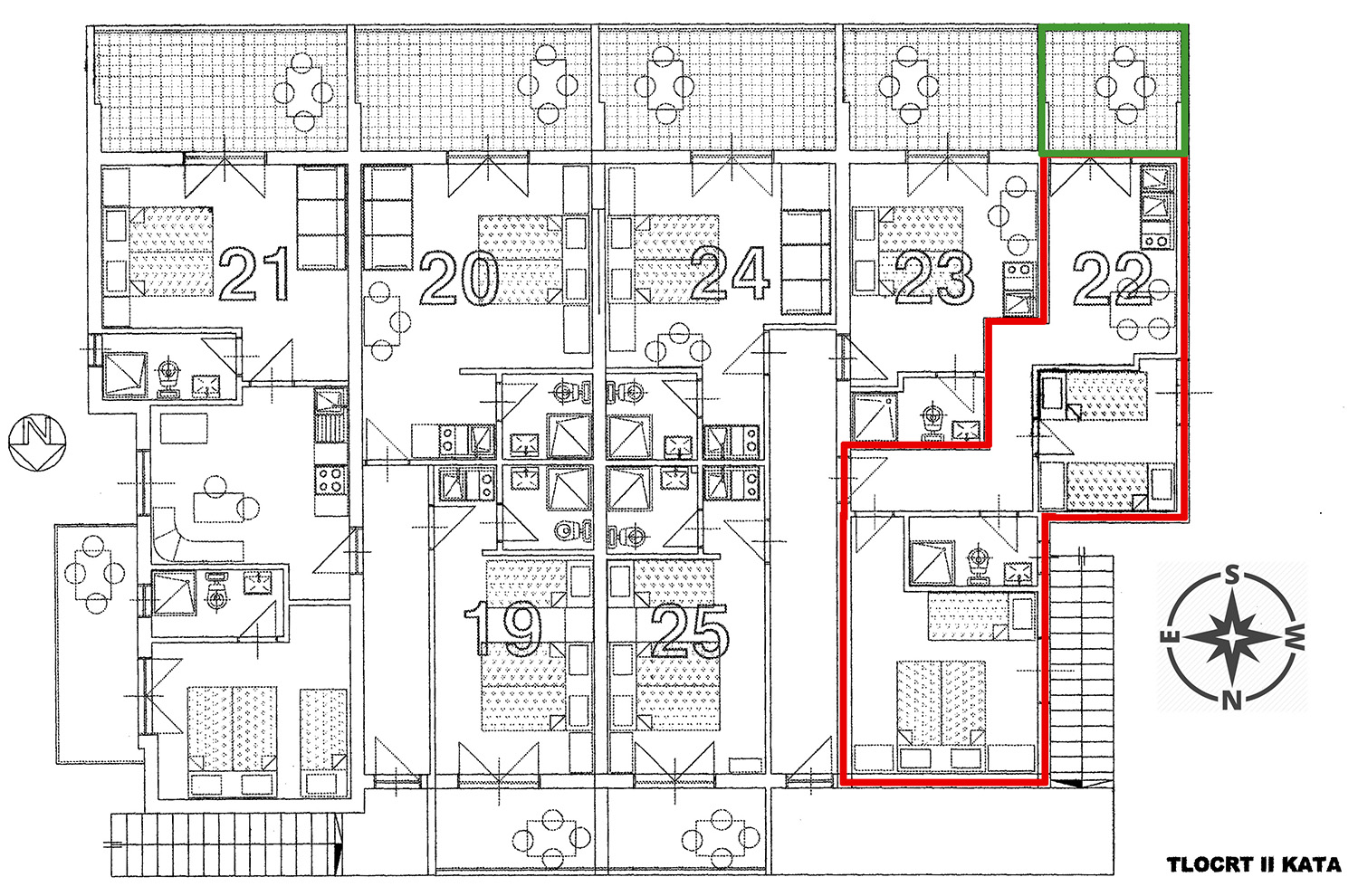
Apartmány Anita č. 22 (4+1)