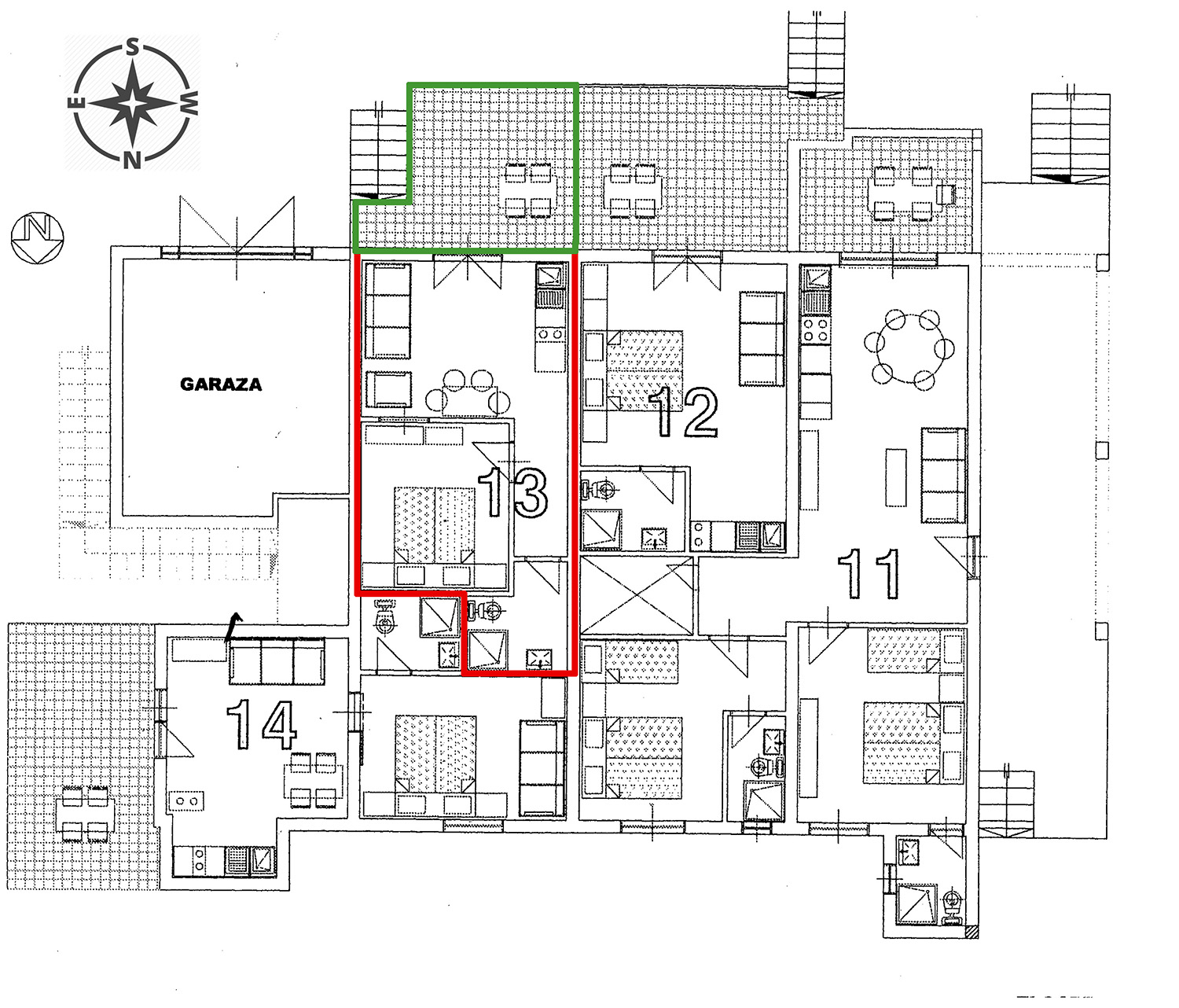
Apartmán Anita č. 13 (2+2)